026547
Код товара:
DEK_ARLT_026547Артикул:
DEK_ARLT_026547Производители
ArlightUPC:
DEK_ARLT_026547MPN:
026547Наличие:
500
2615 р.
Артикул товара: 026547 Штрихкод: 4660105265573
Характеристики товара
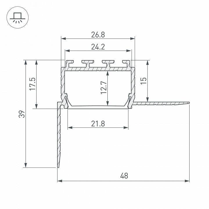
Высота, мм
39
Гарантия, месяцы
12
Длина, мм
2000
Дополнительные параметры
Алюминиевый угловой профиль для светодиодных лент и линеек. Встраиваемый в гипсокартон, под строительную отделку. Позволяет создать линию света между стеной и потолком шириной 24 мм., без видимых частей алюминия. Ширина площадки для ленты 24,2 мм. Экраны, заглушки и другие аксессуары приобретаются отдельно. КПД профиля (cветовой): 83 % Ширина площадки: 20.1-25.0 мм Ширина световой линии: 20.1-25.0 мм Ширина: 50.1-60.0 мм Рассеиваемая тепловая мощность на 1м: max: 37 Вт Способ монтажа: Встраиваемый со скрытым фланцем
Запись типов
Комплектующие для светильников,Комплектующие для профильных светильников,Профили встраиваемые угловые внутренние
Масса брутто, кг
0.39
Материал арматуры
алюминий
Объем упаковки, куб. м
0.00187
Основной цвет
серый
Основной цвет арматуры
серый
Поверхность арматуры
матовый
Примечание
цена указана за 1 м., отпускается кратно 2 м.
Размер упаковки, мм
2000x48x39
Размеры, мм
2000x48x39
Серия
PLS
Способ крепления к поверхности
на т-образных направляющих
Цвет арматуры
серебро
Ширина, мм
48
Штрих-код
4660105265573
Тип товара
Свет
Да
Отзывов: 0
Нет отзывов об этом товаре.